联系我们

0752-2063382
- 邮箱:
- info@esdflooring.cn
- 地址:
- 广东省 惠州市 惠城区 水口龙湖 龙岭路7号
脉冲射线装置独立接地施工、脉冲射线装置接地施工工艺、独立接地装置施工、
脉冲射线装置独立接地施工、脉冲射线装置接地施工工艺、独立接地装置施工、射线装置专用接地施工、脉冲设备独立接地工程-脉冲射线装置独立接地施工工艺(含阿秒 / 强脉冲场景)

脉冲射线装置(含阿秒激光、加速器、X 射线机)的独立接地,核心是低阻、独立、高频稳定、抗冲击、防干扰,必须严格执行GB 50169-2016、GB 50057及行业专项规范。
脉冲射线装置独立接地施工、脉冲射线装置接地施工工艺、独立接地装置施工、射线装置专用接地施工、脉冲设备独立接地工程-核心设计要求
1. 独立性
- 与建筑防雷、强电 PE、消防、管道、弱电接地完全独立,水平间距≥15m,严禁共用接地体 / 引下线。
- 室内外单点接地,全程无接头、无分支,杜绝地环路与杂散电流干扰。
2. 接地电阻
- 阿秒 / 强脉冲装置:≤0.5Ω(工频 + 冲击双达标)。
- 一般脉冲射线:≤1Ω。
- 测试:冲击接地电阻(1.2/50μs、8/20μs 波形)+ 工频电阻双测。
3. 材料选型(高频 + 防腐)
- 接地体:纯铜棒 / 镀铜钢棒(φ20–25mm,长 2.5–3m),禁用普通钢材。
- 水平连接:50×5mm 纯铜排或 95mm² 铜绞线。
- 引下线:95–185mm² 多股铜芯绝缘线(穿管防护)。
- 连接:放热焊接(铝热焊),禁用螺栓连接(大电流易打火)。
4. 高频 / 冲击特性(关键)
- 采用环形接地网 + 辐射状接地极,降低高频电感效应。
- 接地体埋深 **≥1.2m**(冻土层以下),避开岩石、建筑垃圾。
- 回填用细土 + 降阻剂,分层夯实,确保与土壤紧密接触。
脉冲射线装置独立接地施工、脉冲射线装置接地施工工艺、独立接地装置施工、射线装置专用接地施工、脉冲设备独立接地工程-施工全流程(标准工艺)
1. 勘察与定位
- 用温纳四极法测土壤电阻率,绘制等值线图。
- 选址:低电阻率、远离管线 / 基础、排水良好区域。
- 放线:环形网 + 辐射极,间距3–5m,距建筑 **≥2m**。
2. 土方开挖
- 沟深1.2–1.5m,宽0.6–0.8m,沟底平整、无石块。
- 接地极坑:φ300mm、深≥2.5m,垂直打入。
3. 接地体安装(垂直接地极)
- 铜棒垂直打入,顶端埋深≥1.2m,与土壤无间隙。
- 数量:按土壤电阻率计算,通常6–12 根 / 组,呈环形 / 放射状布置。
4. 水平接地网敷设与焊接

- 用50×5mm 铜排连接各接地极顶端,形成闭合环形网。
- 所有连接点放热焊接,焊缝饱满、无气孔,截面≥导体截面。
- 焊接处镀锡 + 沥青漆 / 防腐胶带双重防腐。
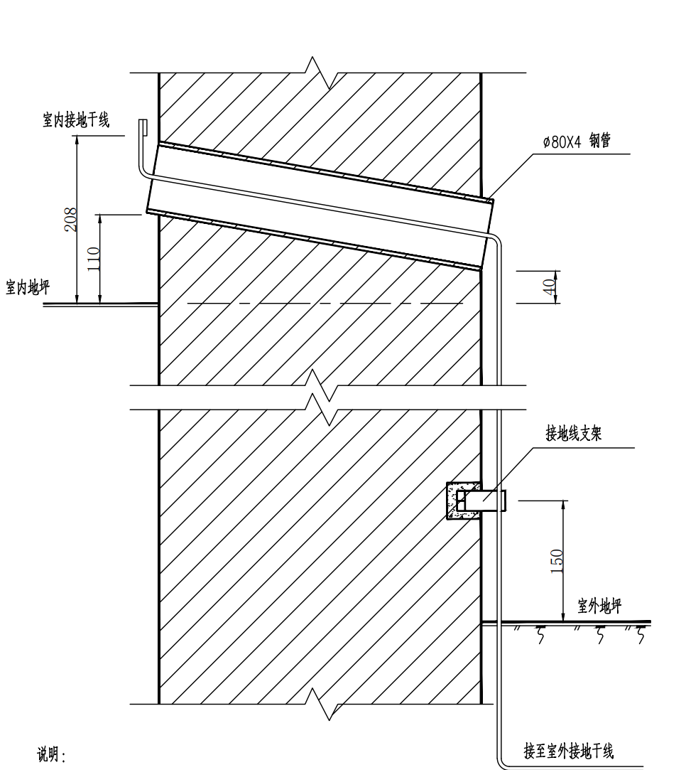
5. 引下线与室内接地端子箱
- 引下线:95mm² 铜芯绝缘线,穿SC50 镀锌钢管保护,全程绝缘。
- 室内设专用独立接地端子箱(50×5mm 铜排,绝缘支架固定),贴警示标识:脉冲装置独立接地・严禁搭接其他设备。
- 设备连接:装置外壳、屏蔽体、高压柜、控制台分别专线接入端子箱,单点接地。
6. 回填与夯实(关键工序)
- 接地体周围回填细土 + 降阻剂(比例 1:3),分层夯实(每层≤30cm),密实度≥90%。
- 严禁回填石块、建筑垃圾、冻土块。
7. 防腐与标识
- 所有金属件热镀锌 / 镀锡 + 防腐涂层。
- 地面设永久接地标识桩,标注:脉冲装置独立接地、电阻≤0.5Ω、严禁破坏。
脉冲射线装置独立接地施工、脉冲射线装置接地施工工艺、独立接地装置施工、射线装置专用接地施工、脉冲设备独立接地工程-测试与验收
1. 接地电阻测试
- 工频:接地电阻测试仪(≥500V),≤0.5Ω。
- 冲击:冲击电流发生器(1.2/50μs、8/20μs),测10kA/50kA下冲击电阻,≤0.5Ω。
2. 连接完整性
- 导通测试:全回路直流电阻≤0.01Ω,无断点、虚焊。
3. 电磁兼容(EMC)
- 距接地网10m处磁场强度 **≤1000A/m**,不干扰精密仪器。
4. 热稳定试验
- 施加额定冲击电流 3 次,接地体 / 焊缝无熔断、开裂、过热。
脉冲射线装置独立接地施工、脉冲射线装置接地施工工艺、独立接地装置施工、射线装置专用接地施工、脉冲设备独立接地工程-阿秒激光装置特殊强化要点
- 接地网网格化:增加均压铜排,降低高频阻抗波动。
- 引下线短直:长度 **≤5m**,减少电感,避免弯折 / 锐角。
- 屏蔽室接地:屏蔽体多点等电位接入独立地网,接缝跨接。
- 二次接地:光学平台、真空腔、探测器单独短距接地,不与主回路串接。

脉冲射线装置独立接地施工、脉冲射线装置接地施工工艺、独立接地装置施工、射线装置专用接地施工、脉冲设备独立接地工程-常见问题与预防
- 电阻超标:增加接地极、加深埋深、加大降阻剂用量、换土。
- 高频干扰:缩短引下线、增大铜排截面、环形均压。
- 腐蚀:全铜 / 镀铜 + 双重防腐,避免不同金属电化学腐蚀。
- 独立性破坏:施工前排查周边接地体,设隔离带。
脉冲射线独立接地以 **≤0.5Ω为目标,采用纯铜 + 放热焊 + 环形网 + 分层回填 + 冲击测试 **,全程独立、短直、防腐、高频稳定,确保阿秒等强脉冲装置安全、低噪、可靠运行。
上一篇:实验室-科研院所研究中心工艺接地工程-0.5欧姆1欧姆接地
下一篇:没有了



